My Role: Intern & Mentee at New Territory


Timeline:
4 months


Software:
Blender

The Brief

The company set the task of creating our own multi-sensory experience.

I decided to do my project on redesigning how people experience an immersive art exhibition for an art gallery.

The process

The process at New Territory was based on the Double Diamond Theory. We aimed to incorporate the key phases of Discovery, Definition, Ideation and Implementation in all of our projects.

Understanding the problem

What Immersive Art Exhibitions lacked:

  • My current experience of immersive art exhibitions: I felt like my senses could’ve been better stimulated.

  • Research- I found that majority of immersive art not inclusive or accessible to disabled people.

  • I wanted to redesign how people experience an immersive exhibition while considering inclusive practices.

A recent article found that:

“[Museums] still do not provide equal access to an experience… it requires somebody within the gallery establishment to be able to have a conversation with the artist and say: [This work] isn’t accessible to our audiences’”

Research

Using the framework provided, I listed various ways other exhibitions provided multi-sensory experiences for the exhibition:

  • Sight: Yayoi Kusama uses light and bright colours.

  • Sound: ASMR Exhibition at the Design museum provided relaxing sounds accompanied with videos.

  • Touch: AA Murakami’s exhibtion at Super Blue gallery allowed visitors to play with bubbles.

A multi-sensory innovation framework was given as an example by New Territory in which we had to rank what senses would be most used in the exhibition. I gathered information by visiting immersive exhibtions as well as speaking to people about their experiences.

Inspiration

The Artist I wanted to base the exhibition on was Sonia Delaunay. She was an artist that created the Orphism movement in 1912- named after the Greek god Orpheus who was known for his musical talents. The work was described as Avant Garde and Abstract.

Why Sonia Delaunay?

  • Sight: The bright colours and illusions the work created, it would be visually engaging for an audience.

  • Sound: The art movement was inspired by the Greek God of music, it was a great idea for the audience to create their own artwork using musical instruments.

  • Touch: The movement was first seen when Sonia Delaunay created a quilt for her child- we would be able to use soft fabrics inspired by the work that audiences could be seated on.

Interviews

Hi, my name is Ryan. I have a disability which means that I have to use crutches. I enjoy going out to exhibitions because I get to learn a lot- I’ve been to the Anne Frank Exhibition in Amsterdam. It was great, however, because it was in an old house it was difficult to walk up and down 3 flights of stairs, especially the attic. There weren’t many places to sit down which was difficult. Key points to condiser when I go out with friends who are in wheelchairs and I go out are accessible ramps and large spaces.

Hi, my name is Jane and I’m 47 years old. I enjoy going to art galleries and experiencing new things with my friends. I once had an AR experience with Air Canada- my colleagues and I were flying and there was a 360 cinema screen. It was scary and exhilarating but the best part was sharing the experience with others.

Ideation

Floorplan

Music Room Sketch

Fabric ideas sketch

After gathering research, I found that people enjoyed experiences where they could have experiences with others and they were guided during these tours.

I decided to create 3 rooms that audiences could travel throughout and experience Sonia Delaunay’s artwork:

Room 1: Audiences can view Delaunay’s paintings.

Room 2: Audiences can create their own Orphism artwork using musical instruments and sound.

Room 3: A 360 cinema room where audiences can relax in Oprhism printed sofas and watch the animation of Delaunay’s painting.

Feedback

As the exhibition was not yet built, we were not able to test this on various audiences. Instead, we consulted an architect who gave advice on the project. The main questions asked was:

What are the best way to layout the pods that allows for people to move in a way that is accessible- especially to those with physical disabilities?

The feedback given were as follows:

  • The room sizes would vary depending on their needs, e.g. A cinema room might be a bit bigger depending on how many people you want to seat and wheelchair access consideration.

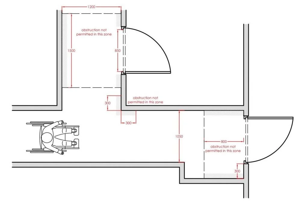
  • The turning diameter of a person in a wheelchair is 1500mm. A wheelchair person passing through a corridor is 1800mm.

  • Cinema chairs could be folding or configurable.

  •  Navigation wouldn't be difficult for people even if it was laid out in unconventional way as long as you give enough circulation space.

Iteration

Upon receiving advice from an architect, we decided to make the following changes to the product:

  1. Pathway spacing for people in wheelchairs

    We considered making pathways bigger depending on the gallery room.

  2. Spacing of each room

    We considered how many people would be in the guided tour so that each room had a max capacity.

Final Prototype

This was the current state of the project when my internship ended:

Results and Takeaways

I’m extremely grateful that I was able to work with an agency and mentor to create a personal project. Here are a few things I learnt during this project:

  1. User Experience Design isn’t restricted to digital experiences

    As this was the beginning of my design journey and a lot of my exposure to current UX Design was digital products, I completely disregarded that UX is applicable to how people experience the world around them.

  2. Collaboration is key

    I hadn’t used Blender before and time was limited, I had to find resources online to learn Blender- however, this was a steep learning curve. I couldn’t complete this in time before the deadline, so I asked a friend to collaborate with me on the project and teach me to use this along the way.

  3. Consider the needs of the gallery

    Although this was a fun and ambitious project, a lot of factors regarding the art industry were not taken into consideration. This included financially being able to get the hold of artwork in the first room.

All in all, the mentorship and internship was a great success that taught me a lot about how design agencies work.

For more work inquiries or if you want to chat,
email me at jasmindelac@gmail.com ☕️✨

More Projects